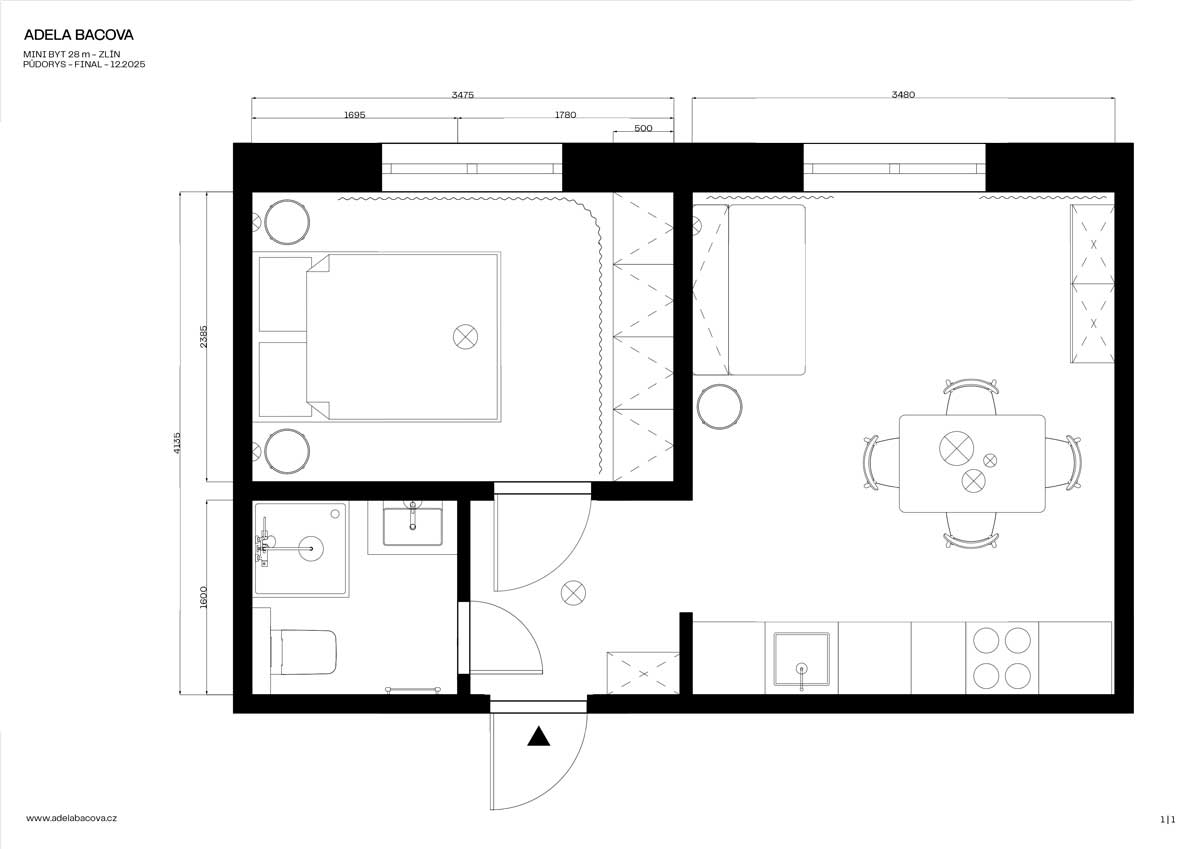
Promyšlený půdorys 28 m² ukazuje, že i malý…

Zpět na článek: 28 m² ve Zlíně bez kompromisů: byt, který boří představy o malém bydlení 20/21
    Půdorys malého bytu o rozloze 28 m² od Adély Bačové ukazující rozvržení kuchyně, ložnice, koupelny a obytné části.

Promyšlený půdorys 28 m² ukazuje, že i malý byt může působit vzdušně.
Zdroj: Adéla Bačová

Sdílet