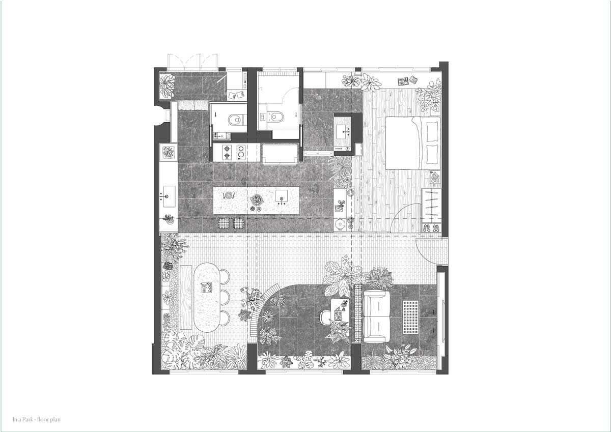
Půdorys odhaluje promyšlené uspořádání, kde se každá část…

Zpět na článek: Byt jako park: 571 cihel a desítky rostlin změnily atmosféru domova 26/27
    Půdorys bytu ukazuje otevřené propojení kuchyně, jídelny a obývací části s centrální cihlovou strukturou a zelení.

Půdorys odhaluje promyšlené uspořádání, kde se každá část bytu přirozeně propojuje se zelení.
Zdroj: Jovian Lim

Sdílet