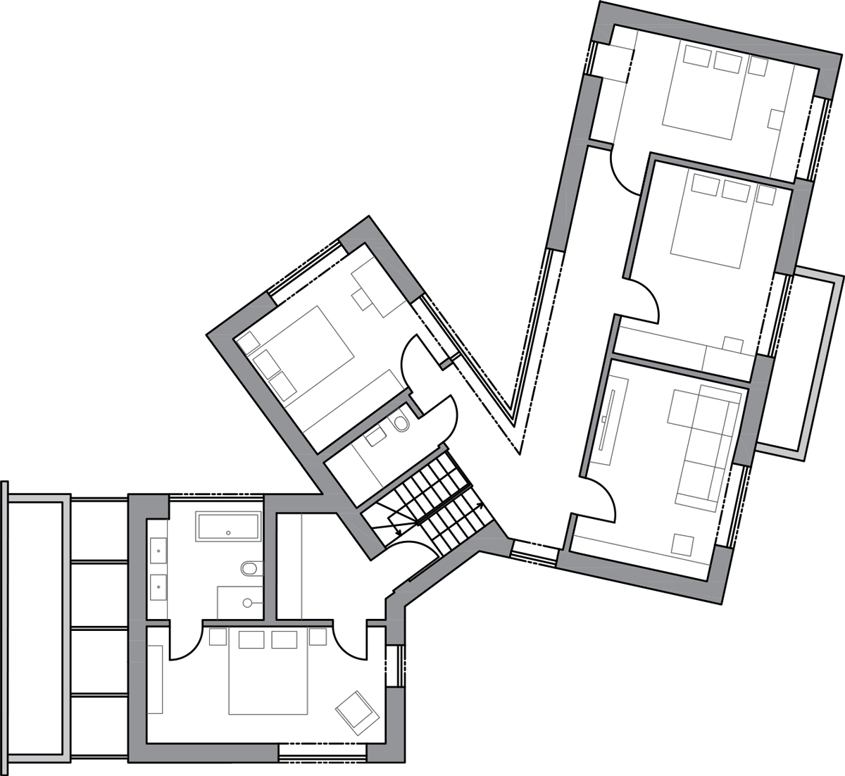
Horní patro zrcadlí strukturu přízemí – poskytuje soukromí…

Zpět na článek: Malý pozemek, rušná čtvrť a touha po soukromí? Pomohl atypický tvar rodinného domu 18/19
    Půdorys horního patra rodinného domu s ložnicemi a koupelnou.

Horní patro zrcadlí strukturu přízemí – poskytuje soukromí a výhledy do všech stran zahrady.
Zdroj: Ingus Bajārs

Sdílet