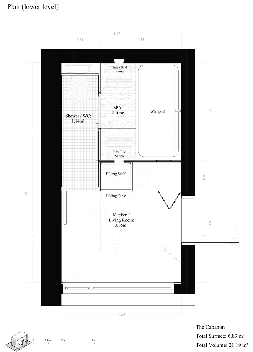
Dolní patro na ploše pouhých sedmi metrů čtverečních…

Zpět na článek: Nemá ani sedm metrů čtverečních. Vešly se do něj čtyři „místnosti“, a ještě sauna! 24/28
    Technický půdorys dolního patra mikrobytu s kuchyní, toaletou a saunou.

Dolní patro na ploše pouhých sedmi metrů čtverečních propojuje kuchyň, koupelnu a miniaturní wellness – důkaz, že prostor je otázkou myšlení, ne velikosti.
Zdroj: Ossip Architectuur Fotografie

Sdílet