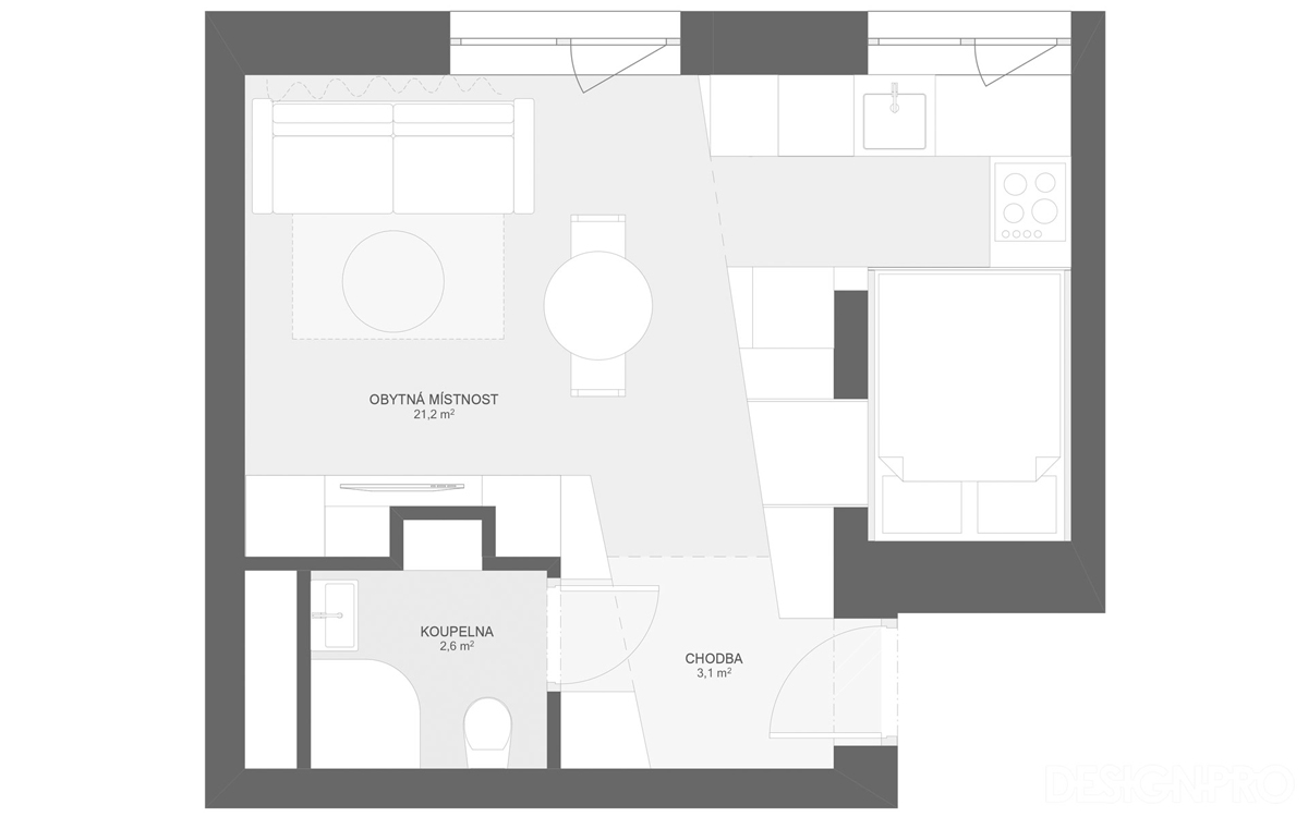
Půdorys ukazuje chytré členění prostoru na zónu pro…

Zpět na článek: Startovací bydlení pro mladý pár v Praze. Důkaz, že i 26 m² může být plnohodnotný domov 12/14
    Půdorys mini bytu s rozložením obytné místnosti, kuchyně, ložnice a koupelny.

Půdorys ukazuje chytré členění prostoru na zónu pro vaření, spaní i relax.
Zdroj: Ondřej Krynek

Sdílet