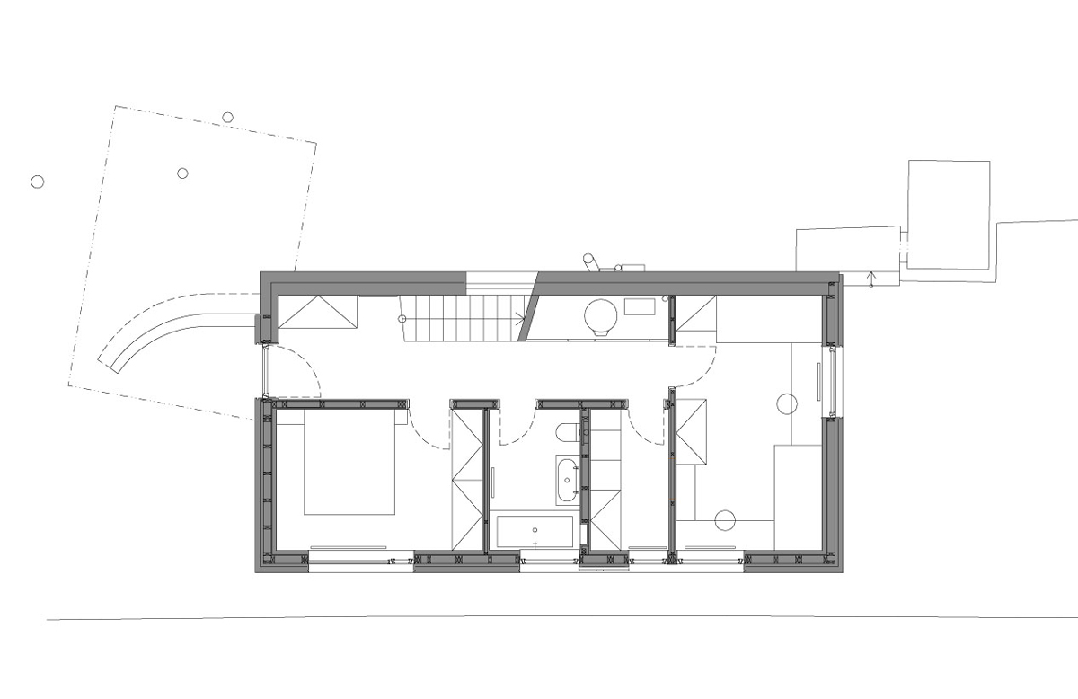
Dispozice domu je jednoduchá a účelná – každé…

Zpět na článek: Nedostupný terén nad Berounkou je donutil stavět ručně, ale poctivě. Proč dům dostal jméno Vlaštovka a jak se do něj vejde čtyřčlenná rodina? 12/14
    Půdorys spodního podlaží nízkoenergetického domu Vlaštovka s ložnicí, koupelnou a technickým zázemím

Dispozice domu je jednoduchá a účelná – každé místo využívá maximum přirozeného světla.
Zdroj: Sodomka Sodomková Architekti

Sdílet