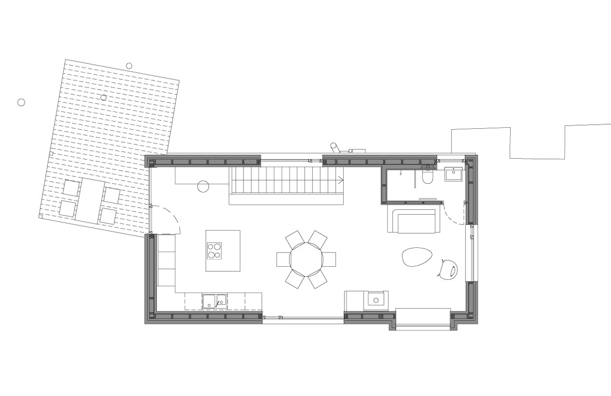
Horní podlaží tvoří otevřený obytný prostor s kuchyní,…

Zpět na článek: Nedostupný terén nad Berounkou je donutil stavět ručně, ale poctivě. Proč dům dostal jméno Vlaštovka a jak se do něj vejde čtyřčlenná rodina? 13/14
    Pudorys_horni_podlazi

Horní podlaží tvoří otevřený obytný prostor s kuchyní, jídelnou a obývací částí, který plynule navazuje na terasu orientovanou k jihovýchodu.
Zdroj: Sodomka Sodomková Architekti

Sdílet