Nedostupný terén nad Berounkou je donutil stavět ručně, ale poctivě. Proč dům dostal jméno Vlaštovka a jak se do něj vejde čtyřčlenná rodina?
Nízkoenergetická „Vlaštovka“ vznikla na svažitém pozemku v údolí Berounky. Architekt Marek Sodomka ze studia Sodomka Sodomková Architekti ji navrhl jako dům pro čtyřčlennou rodinu, který reaguje na terén, respektuje přírodu a nabízí komfortní bydlení pro čtyřčlennou rodinu. Vše postavili ručně.
Obývací pokoj
Přírodní materiály a přiznané dřevěné trámy vizuálně sjednotily prostor a vytvořily útulné hnízdo. V kombinaci s masivní podlahou vznikl nadčasový základ. Velké okno propouští dostatek denního světla a rámuje výhled na přírodu – nebojte se hlubokých parapetů, které můžete využít na dekorace nebo jako místo na sezení.

Obývací část s krbem a výhledem do korun stromů nabízí klid, teplo i propojení s přírodou. Zdroj: Petr Polák
Schodiště
Schodiště je více než jen spojovacím prvkem dvou podlaží. Funguje jako světelná šachta, která přivádí denní světlo do hloubky interiéru. Využijte vertikální prostor na maximum a přidejte závěsná svítidla s teplým, ambientním světlem, které vytvoří útulnou atmosféru i ve večerních hodinách. Zelené rostliny oživí prostor a v kombinaci s přírodním dřevem vytvoří pocit domova.
Pohled z terasy
Terasa je ideálním místem k propojení interiéru s exteriérem. Využijte přírodní materiály, které krásně stárnou – jako například modřín, který časem získá elegantní šedou patinu.
Pokud chcete dosáhnout podobného efektu, vyberte si kvalitní dřevo, které je odolné proti povětrnostním podmínkám a zároveň nenáročné na údržbu.
Kuchyně a jídelna
Okna od podlahy téměř po strop otevírají kuchyni s jídelnou do přírody a naplňují ji světlem. Pokud máte podobný prostor, nechte okolo stolu dostatek místa – oceníte to při rodinných setkáních i rychlé snídani. Světlé dřevo a matné povrchy vytvářejí příjemně čistý základ, který se snadno kombinuje s přírodními doplňky.
Pohled z lesa
Z této strany působí dům jako součást lesa – vysoká modřínová fasáda se tiše ztrácí mezi stromy. Vyvýšený balkon je ideálním místem k odpočinku v korunách stromů. Spodní podlaží, částečně zapuštěné do svahu, poskytuje soukromí a příjemné klima i během horkých dní.

Dům Vlaštovka působí lehce a přirozeně zasazeně do svažitého terénu. Terasa s houpací sítí nabízí nerušený výhled do zeleného údolí. Zdroj: Petr Polák
Z opačné strany
Z této strany působí dům pevně a uzavřeně. Vertikálně uložené desky z modřínu časem zešedivějí a dům ještě více splyne s lesem. Jednoduchý, čistý tvar střechy má zároveň praktický význam – její sklon je navržený tak, aby efektivně odváděl dešťovou vodu a minimalizoval údržbu.
Velké okno v horním podlaží otevírá výhled do korun stromů z denní zóny, zatímco menší okno dole patří jednomu z dětských pokojů.
Galerie:
- Dům s asymetrickou střechou připomíná křídla vlaštovky a přirozeně kopíruje svah, ve kterém stojí.
- Z této strany působí dům pevně a uzavřeně. Vertikálně uložené desky z modřínu časem zešedivějí a dům ještě více splyne s lesem. Jednoduchý, čistý tvar střechy má zároveň praktický význam – její sklon je navržený tak, aby efektivně odváděl dešťovou vodu a minimalizoval údržbu. Velké okno v horním podlaží otevírá výhled do korun stromů z denní zóny, zatímco menší okno dole patří jednomu z dětských pokojů.
- Okna od podlahy téměř po strop otevírají kuchyni s jídelnou do přírody a naplňují ji světlem. Pokud máte podobný prostor, nechte okolo stolu dostatek místa – oceníte to při rodinných setkáních i rychlé snídani. Světlé dřevo a matné povrchy vytvářejí příjemně čistý základ, který se snadno kombinuje s přírodními doplňky.
- Obývací část s krbem a výhledem do korun stromů nabízí klid, teplo i propojení s přírodou.
- Dům Vlaštovka působí lehce a přirozeně zasazeně do svažitého terénu. Terasa s houpací sítí nabízí nerušený výhled do zeleného údolí.
- Dřevěné schodiště propojuje obě podlaží a zachovává přirozenou hřejivost materiálu. Přirozené světlo a zeleň doplňují útulnou atmosféru domu.
- Minimalistická koupelna s výhledem do přírody spojuje tmavé kamenné obklady s teplým dřevem na stropě. Příjemný kontrast, že?
- Velká okna rámují výhledy do údolí a propojují interiér s přírodou, která obklopuje celý dům
- Mezi korunami stromů se zjevuje dřevěná silueta domu, který se do krajiny doslova zanořil.
- Proces výstavby. Betonová zeď slouží jako opora pro polozapuštěné přízemí, která v létě příjemně chladí.
- Proces výstavby. Vedle betonové zdi vyrostla dřevěná rámová konstrukce, která postupně uzavřela stavbu. Velké okenní otvory zajistily dostatek světla a propojení s přírodou.
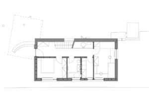
- Dispozice domu je jednoduchá a účelná – každé místo využívá maximum přirozeného světla.
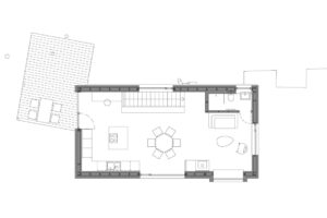
- Horní podlaží tvoří otevřený obytný prostor s kuchyní, jídelnou a obývací částí, který plynule navazuje na terasu orientovanou k jihovýchodu.
Text: Sabína Zavarská
Foto: Petr Polák, Petr Neubert, Marek Sodomka
Zdroj: Časopis HOME/Sodomka Sodomková Architekti

















